2

Descrizione

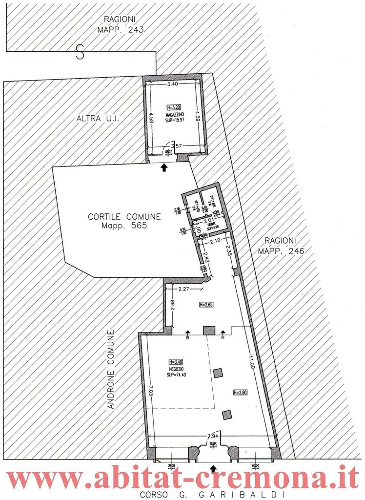
Rif. 4092 - Corso Garibaldi, in zona top shopping, affittiamo locale commerciale, 2 vetrine fronte strada, ottima visibilità. L'immobile è in buono stato di manutenzione, 2 locali, doppi servizi oltre a magazzino di circa mq 16. La nostra agenzia opera sul territorio cremonese da oltre 25 anni con professionalità e serietà, segue compravendite ed affittanze di ogni tipologia di immobile, con particolare attenzione all'espletamento di ogni pratica burocratica. Manteniamo il massimo aggiornamento riguardo tutte le novità fiscali/legislative in materia. Offriamo serietà e professionalità nell'assistenza alle compravendite immobiliari di ogni tipo, gestione locazioni residenziali e commerciali. La nostra missione è quella di dare una copertura a 360° al cliente, seguendolo fin dai primi contatti sino al passaggio di proprietà. Mettiamo a disposizione dell'acquirente la nostra ventennale esperienza consigliandolo sulla eventuale parziale o totale ristrutturazione dell'immobile, collaborando con diversi artigiani locali. Le illustrazioni e le descrizioni presenti in questo annuncio possono contenere degli errori e/o omissioni e non hanno in nessun modo valore contrattuale.

Planimetrie

Altre caratteristiche

Categoria Immobile
Commerciali e Attività
Tipologia Immobile
Negozio / Locale Commerciale
Spese condominiali
€ 300 €/anno
Metri Quadri
92 mq
IPE
577,11
Classe energetica
D
Riscaldamento
Autonomo
Piano
Terra
Bagni
2
Stato Immobile
In buone condizioni
Contatta Agenzia
Proposto da: ABITAT IMMOBILIARE CREMONA