185 mq
2
2
Garage/Posto Auto
Autonomo
A2

Descrizione

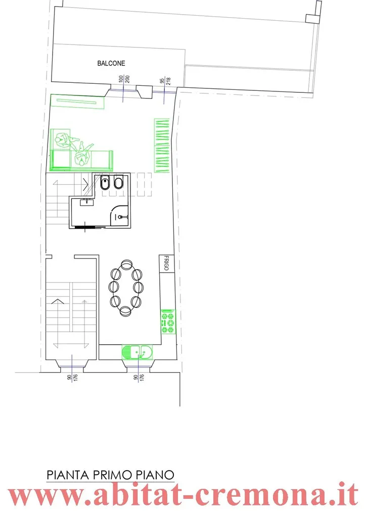
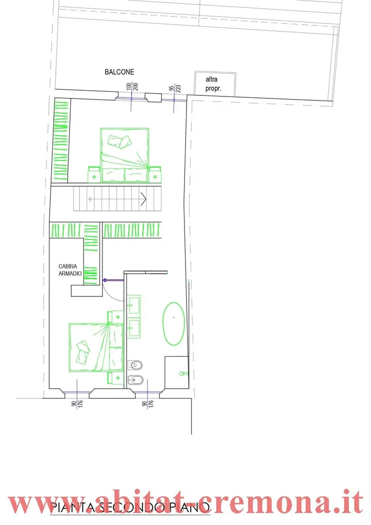
Rif. 4124 - In laterale di corso Garibaldi proponiamo in nuova costruzione porzione di casa indipendente disposta su due livelli oltre autorimessa doppia con cortile privato di 25 mq. così composta: p.t. autorimessa e cortile, piano 1° cucina abitabile, soggiorno, terrazzino e bagno, piano 2° due camere da letto con doppia cabina armadio, bagno e terza camera da letto con relativo bagno al piano mansarda. Ottimo il capitolato delle finiture, classe energetica "A" , fotovoltaico con predisposizione all'accumulo, riscaldamento a pavimento, raffrescamento, pavimenti e rivestimenti in gres di ampio formato, portoncino blindato e serramenti in PVC con doppio vetro. Possibilità di personalizzare la disposizione interna e le finiture. Chiamaci e/o scrivici subito per visionare lo stato attuale ed i progetti con il capitolato delle finiture!!! La nostra agenzia opera sul territorio cremonese da oltre 25 anni con professionalità e serietà, segue compravendite ed affittanze di ogni tipologia di immobile, con particolare attenzione all'espletamento di ogni pratica burocratica. Manteniamo il massimo aggiornamento riguardo tutte le novità fiscali/legislative in materia. Offriamo serietà e professionalità nell'assistenza alle compravendite immobiliari di ogni tipo, gestione locazioni residenziali e commerciali. La nostra missione è quella di dare una copertura a 360° al cliente, seguendolo fin dai primi contatti sino al passaggio di proprietà. Mettiamo a disposizione dell'acquirente la nostra ventennale esperienza consigliandolo sulla eventuale parziale o totale ristrutturazione dell'immobile, collaborando con diversi artigiani locali. Le illustrazioni e le descrizioni presenti in questo annuncio possono contenere degli errori e/o omissioni e non hanno in nessun modo valore contrattuale.

Planimetrie

Altre caratteristiche

Stato Immobile
Nuovo
Vani
4
Tipo di cucina
Abitabile
Balconi
1
Terrazze / Logge
1
Metratura giardino
25
IPE
28,14
Tipologia Immobile
Casa singola
Categoria Immobile
Case e Appartamenti
Contatta Agenzia
Proposto da: ABITAT IMMOBILIARE CREMONA

Quotazioni immobiliari per via volturno 17 - Cremona